- 価格
- 2,290万円
- 間取り
- 4LDK
- 土地面積
- 168.61㎡
- 建物面積
- 102.87㎡
- 築年月
- 2025年11月(新築)
物件の特徴
-
バストイレ別
-
室内洗濯機置場
-
TVモニタ付きインターホン
-
カウンターキッチン
-
独立洗面台
セールスポイント
[西端小学校・西端中学校]
◎西端小学校まで徒歩10分、西端保育園まで徒歩7分!
◎セブンイレブンまで徒歩5分、郵便局まで徒歩4分♪
●LDK19帖は広々としていて開放的!1階に和室あり!
●収納豊富なウォークインクローゼット付き♪
●駐車場並列2台可能。
0566-52-6063またはinfo@hachidaifudousan.comからお気軽にご連絡ください(*^_^*)
ポイント
新築分譲住宅 クロゼット3ヶ所 対面式キッチン ホルムアルデヒド対策 温水洗浄便座
担当者のコメント
パノラマ画像

玄関
キッチン
リビング
風呂
洋室
基本情報
- 販売戸数
- 2戸
- 総戸数
- 3戸
- 間取り / 詳細
- 4LDK
LDK 19.0帖 1室/和室 4.0帖 1室/洋室 8.2帖 1室/洋室 6.5帖 1室/洋室 6.0帖 1室/その他 1.5帖 1室
・ウォークインクローゼット
- 向き
- -
- 建物面積(坪数)
- 102.87㎡(31.11坪)
- 土地面積(坪数)
- 168.61㎡(51.00坪)
- 建ぺい率 /
容積率 - 60%/160%
- 築年月
- 2025年11月(新築)
- 駐車場 /
月額料金 - 有 -
- 土地権利
- 所有権
- 土地
(敷金 / 保証金) - - / -
- 建物構造
- 木造 / 2階建
- 傾斜地部分面積
- -
- 路地状敷地
- -
- 私道負担面積
- -
- セットバック
- 済
- 高圧線下面積
- -
- 施工会社
- (株)アーネストワン
- 用途地域
- 第一種住居
- 地目 / 地勢
- 宅地 / -
- 接道状況
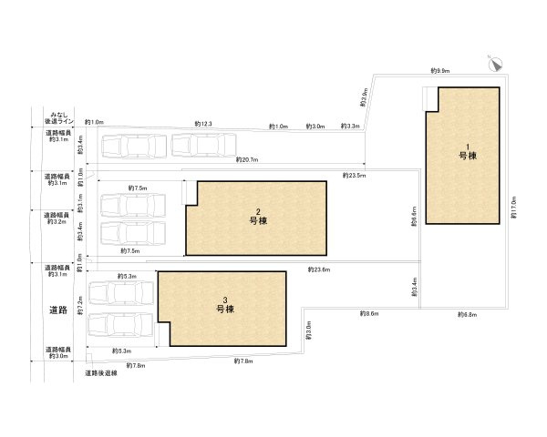
- 一方(西 公道 3.1m 間口 6.6m)
- 国土法届出要否
- 不要
- 都市計画
- 市街化区域
- 総区画数 /
販売区画数 - 3区画/2区画
- 現況
- 完成済み
- その他
法令上の制限 - 建基法22条指定区域
- 取引態様
- 仲介
- 引渡し
- 相談
- 取引条件の
有効期限 - 2026年03月19日
設備条件
- 設備条件
-
- 室内洗濯機置場 / フローリング / バルコニー / ルーフバルコニー / プロパンガス / 公営水道 / 公共下水 / 電気有 / 駐車2台可 / 耐震構造 / ガスコンロ / コンロ2口以上 / システムキッチン / カウンターキッチン / コンロ3口 / バス・トイレ別 / 追焚機能浴室 / 温水洗浄便座 / 洗面台 / トイレ2ヶ所 / 浴室1坪以上 / 独立洗面台 / 床下収納 / ウォークインクロゼット / TVモニタ付インターホン
- 設備(その他)
-
-
-
その他
- 物件番号
- 99293543
- 管理コード
- -
- 建築確認番号
- 第HPA-25-07743-1号
- 情報更新日
- 2026年03月05日
- 次回更新予定日
- 2026年03月19日
- 取扱会社
-
- 株式会社八大不動産
- 愛知県高浜市二池町2丁目7-8
- TEL:0566-52-6063
- 愛知県知事 (7) 第17723号
建設業許可番号 愛知県知事 許可(般-2)第45962号 - 公益社団法人全国宅地建物取引業保証協会
一般社団法人全国賃貸不動産管理業協会
- 備考
- 碧南西端郵便局まで270mです☆JAあいち中央西端支店が歩いて229mのところにあります☆戸建て物件をご検討なら、コチラの新築の物件をご覧ください☆TVインターホンで、モニターから来訪者が確認できます☆快適な暮らしを送るために、当社スタッフが総力を挙げて不動産探しをいたします☆まずはご希望条件などをお気軽にお申しつけくださいませ(*^^*)
周辺施設
-
その他
山形屋
106m(2分)
-
公園
湖西公園
173m(3分)
-
焼肉
花苑
226m(3分)
-
銀行
JAあいち中央西端支店
229m(3分)
-
郵便局
碧南西端郵便局
270m(4分)
-
コンビニエンスストア
セブン-イレブン碧南上町4丁目店
370m(5分)
-
保育園
西端保育園
491m(7分)
-
内科
深津医院
647m(9分)
-
市役所・区役所
碧南市役所 哲学たいけん村無我苑
678m(9分)
-
幼稚園
碧南市立西端幼稚園
686m(9分)
-
小学校
碧南市立西端小学校
778m(10分)
-
公園
油ヶ渕遊園地
806m(11分)
-
中学校
西端中学校
979m(13分)
-
喫茶店・カフェ
喫茶レストラン・パッション
1098m(14分)
-
和風料理
チャンコやぐら 西端店
1137m(15分)
-
ドラッグストア
ココカラファインジップドラッグ荒居店
1143m(15分)
-
ドラッグストア
スギドラッグ碧南坂口店
1282m(17分)
-
スーパー
イクタフード平和店
1990m(25分)
-
スーパー
アオキスーパー 碧南店
2315m(29分)
-
駅
北新川駅
2848m(36分)
支払いシミュレーション
- 月々の支払額
- 円
- 購入希望物件価格
-
万円
- 頭金
-
万円
- 金利
-
%
- 返済額(ボーナス1回分)
-
万円
- 返済期間
-
年
※ボーナスは自動で年2回分で計算されます。
近隣の物件
よく見られている物件
碧南市湖西町第2 新築一戸建
2,290万円
-
4LDK(102.87㎡)
◎西端小学校まで徒歩10分、西端保育園まで徒歩7分!
◎セブンイレブンまで徒歩5分、郵便局まで徒歩4分♪
●LDK19帖は広々としていて開放的!1階に和室あり!
●収納豊富なウォークインクローゼット付き♪
●駐車場並列2台可能。
0566-52-6063またはinfo@hachidaifudousan.comからお気軽にご連絡ください(*^_^*)